Gewerbeobjekt - 4.214 €
VB3287VHa Neuwertige Bürofläche Neutraubling zimmer VB3287VHa Neuwertige Bürofläche Neutraubling zimmer
VB3287VHa Neuwertige Bürofläche Neutraubling zimmer VB3287VHa Neuwertige Bürofläche Neutraubling zimmer

VB3287VHa Neuwertige Bürofläche Neutraubling

Informationen zur Immobilie:
Ort
93073 Neutraubling
Objektart
Gewerbeobjekt
Größe
468,00 m²
4.214 €
Beschreibung:
Mehr zum Angebot VB3287VHa Neuwertige Bürofläche Neutraubling:

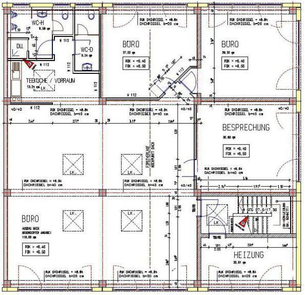
# Objektbeschreibung
Die zur Vermietung angebotene Bürofläche befindet sich sehr verkehrsgünstig gelegen in einem Gewerbegebiet in Neutraubling.

Das mit Glasfaseranschluss ausgestattete Gewerbeanwesen besteht aus mehreren Hallen und einem Bürohaus. Zur Vermietung stehen... mehr erfahren
weitere Gewerbeobjekte
social facebook social youtube social instagram social tiktok

Copyright © 2000 - 2025 | 1A Infosysteme GmbH | Content by: 1A-Anzeigenmarkt.de 25.10.2025